Yard Setbacks

Each zoning district has minimum front, side, and rear yard setbacks.  Setbacks are measured from the property line (or from the development setback required by AMC 21.06.030C.7. for streets classified in the Official Streets and Highways Plan.)

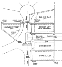
Yard Setbacks Diagram 

diagram illustrating yard setbacks

Click to enlarge

If you don't know which zoning district you're in, you can find out at the MyNeighborhood website.  If you are not sure about your setbacks you may come to Land Use Enforcement and an officer will determine the requirements.

In addition to the yard setbacks, there are other legal restrictions on the location of buildings.

All street frontages have front yard setbacks. If a lot has more than one street frontage, the depths of the front yard setbacks are modified (see AMC 21.45.120.A - .C for the details.)  Front yard setbacks are measured from the property line, not from the sidewalk, the curb, or the edge of the roadway.

Yard setbacks provide for the circulation of light and air, permit access to the perimeter of buildings for emergency personnel, and provide a fire break between structures.  For these reasons, structures are generally not permitted within yard setbacks.  Exceptions to this general rule are found in AMC 21.06.030.

Structures that encroach into yard setbacks may have  nonconforming (grandfather) rights if they were legally built before zoning.  It is also possible to obtain a variance for an encroaching structure.

If you use the online version of the code, try searching on "21.06.030" for more information.  Please note that recent amendments may not have been published yet.  Land Use Enforcement will be happy to verify the current code language for you.